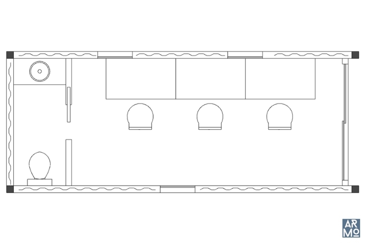
Espacio Co-working/Oficina
Módulo de Oficina Colaborativa (Coworking) con acabados de alta gama. Esta unidad incluye Aire Acondicionado (AA) y un sanitario (medio baño) con inodoro y lavamanos. Ideal para la instalación rápida de un centro de trabajo. Terminaciones interiores de primera calidad para asegurar durabilidad y confort profesional. Opcional: equipamiento interior.
Nuestros productos cumplen con los más rigurosos estándares de calidad, asegurando durabilidad y funcionalidad óptima.